Thông tin bồn cầu TOTO CS948DW18 nắp rửa điện tử
- Bồn cầu TOTO nắp điện tử Washlet TCF23710AAA (220V)
- Mã sản phẩm: CS948DW18#XW
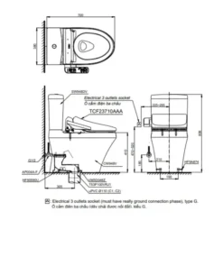
- Kích thước (DxRxC): 700 x 380 x 806 mm
- Màu sắc: Trắng
- Hệ thống xả: Tornado
- Lượng nước xả:4.8L/3L
- Thiết kế: Thân dài , thân bán kín
- Tâm xả: 305 mm
- Áp lực nước: 0.05 ~ 0.70 MPa
- Nguồn điện: 220V, 50/60Hz
- Lưu ý: Bao gồm van dừng
- Bảo hành: 2 năm
Tính năng bàn cầu nắp rửa điện tử TOTO CS948DW18XW
- Hệ thống xả Tornado siêu mạnh, tiết kiệm nước
- Công nghệ CeFiONtect giúp lòng bàn cầu siêu nhẵn, hạn chế tối đa các vết bẩn, vi khuẩn
- Điều khiển bên hông tiện lợi
- Phun sương lòng bàn cầu
- Vòi rửa massage đa chức năng, rửa sạch, êm ái
- Dễ dàng thiết lập nhiệt độ nước theo sở thích
- Chuyển động qua lại của cây nước đảm bảo làm sạch toàn bộ khu vực một cách kỹ lưỡng.
- Điều chỉnh 5 mức áp lực nước.
- Có chức năng sưởi ấm bệ ngồi
- Có chế độ rửa đại tiện và tiểu tiện nữ
- Điều chỉnh nhiệt độ nước rửa
- Không có chức năng: Khử mùi, sấy khô và Ewater cho vòi phun
Bồn cầu Washlet TOTO CS948DW18#XW
- Thân cầu: C948 – Xuất xứ: Việt Nam
- Két nước: S948D#W – Xuất xứ: Việt Nam
- Nắp bồn cầu điện tử: TCF23710AAA – Malaysia
Bản vẽ kích thước bồn cầu điện tử TOTO CS 948DW18




Reviews
There are no reviews yet.