Thông số thân bồn cầu treo tường TOTO CW822RA+TC600VS
- Bộ sưu tập: AVANTE
- Mã sản phẩm: CW822RA#W
- Tên sản phẩm: Bàn cầu treo tường AVANTE, nắp đóng êm TC600VS
- Hệ thống xả: Tornado
- Công nghệ CeFiONtect giúp lòng bàn cầu siêu nhẵn, hạn chế tối đa các vết bẩn, vi khuẩn
- Thiết kế: Thân dài
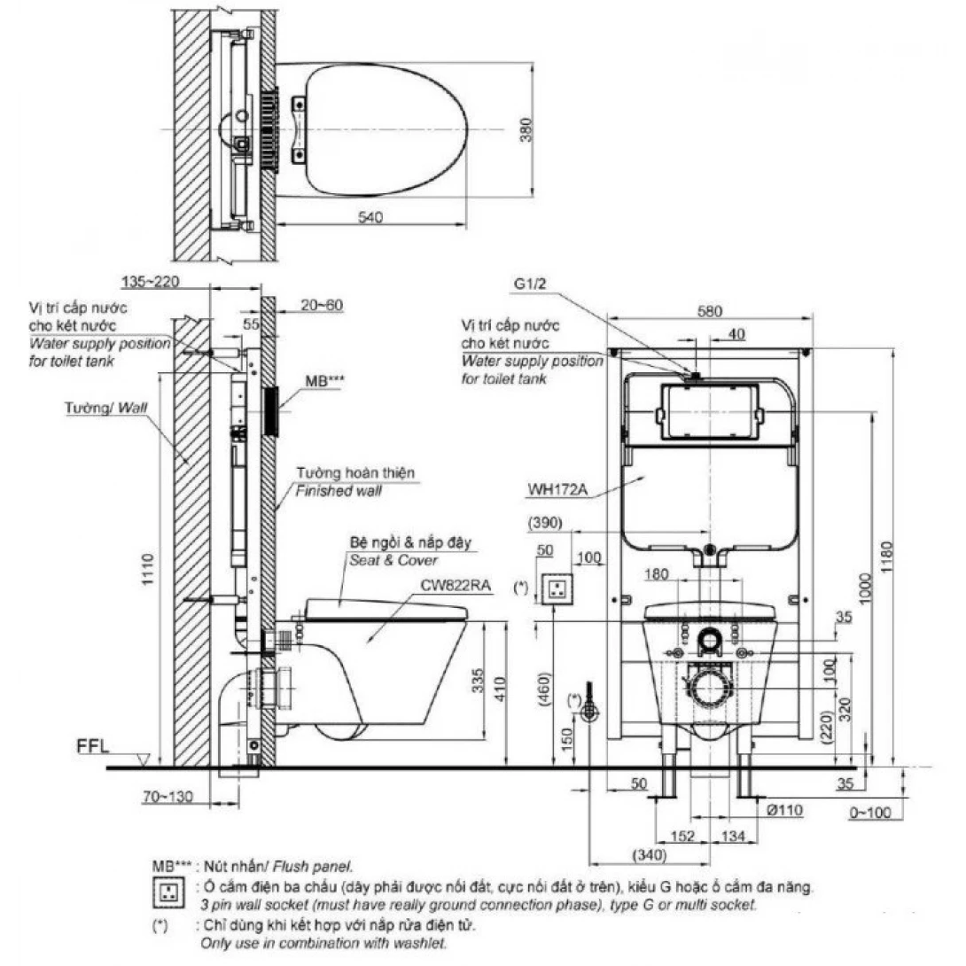
- Tâm xả: 220 mm
- Kích thước: 545x365x311 mm
- Áp lực nước: 0.05Mpa~0.75Mpa
- Màu sắc: Màu trắng
Tính năng bồn cầu TOTO CW822RA#W/TC600VS#W két âm
- Thiết kế hài hòa với bộ AVANTE
- Nắp đóng êm
- Thiết kế thân kín giúp tiết kiệm thời gian, chi phí vệ sinh sản phẩm
- Bàn cầu kiểu dáng treo tường giúp dễ dàng vệ sinh
- Thiết kế két nước âm tường
Chi tiết phụ kiện bồn cầu đặt sàn gồm có:
- Thân cầu: CW822RA – Xuất xứ: Inđônêxia
- Nắp bồn cầu: TC600VS – Xuất xứ: Việt Nam
Bản vẽ kỹ thuật xí bệt CW822RA#W TC600VS





Reviews
There are no reviews yet.